BUGA Für Alle 2021
Kriegspulvermagazin Petersberg
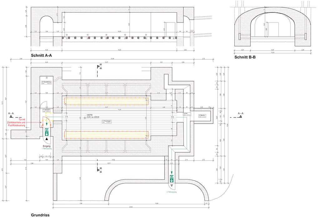
Das Kriegspulvermagazin befindet sich auf dem Petersberg und ist Teil der Befestigungsanlage. Für die BUGA 2021 wurde das Objekt ertüchtigt und für die Umnutzung zu einer Ausstellung saniert. Dabei wurden die Zugänge entsprechend Konzept und Brandschutz aufgearbeitet. Alle Räume wurden saniert, dabei wurde viel Wert auf Erhaltung der vorhandenen Bausubstanz gelegt, Bodenbeläge aufgearbeitet und Wandflächen gesäubert.
Bauherr
Stadtverwaltung Erfurt
Leistungsphasen
1-8 gemäß HOAI
Fertigstellung
2021





